产品名称:保温提升门
产品品牌:SEPPES西朗
产品特点:密封保温,防盗抗风,坚固耐用,外形美观
我们的保温提升门专为温控环境设计,适用于食品加工厂、冷链仓库等需要温度管理的场所。门体采用多层复合结构,中间填充保温材料,配合密封条系统,有效减少室内外热量交换。门框采用断热设计,降低热传导,提升整体保温效果。我们提供多种规格可选,可根据不同建筑洞口尺寸和使用需求进行定制。门体结构经过严格测试,确保长期使用的稳定性和可靠性。安装后能有效维持室内温度稳定,降低能耗成本,适合对温度控制有严格要求的工业场所。

符合标准
保温提升门的设计完全符合国家标准国家标准(08cj17)。
热效率
好的隔热系数–面板厚度为80毫米,无冷桥,具有隔热性能的型材,整个周边密封条的可靠密封。
安全
标配钢丝绳防断装置、扭簧防断装置、安全气囊等。

▲保温门板
细节

1. 扶轨 | 2. 垂直导轨 | 3. 实心镀锌轴 |
4、扭簧防断保护装置 | 5. 塔轮 | 6.U型支架 |
7.平衡弹簧机构(扭簧) | 8. 联轴器 | 9. 内部支撑架 |
10. 带滚轮支架的顶部支撑 | 11. 带滚轮支架的侧支撑 | 12.内循环 |
13、钢丝绳防断保护装置 | 14.门板80毫米 | 15. 加强三角型材 |
16. 底部轮廓和密封 | 17. 侧封 | 18. 顶部轮廓和密封 |
19. 带安装孔面板的侧盖加固 | 20. 型材框架配 | 21. 安装支架 |
22. 弹簧阻尼器 | 23. 距离 C 型材 | |
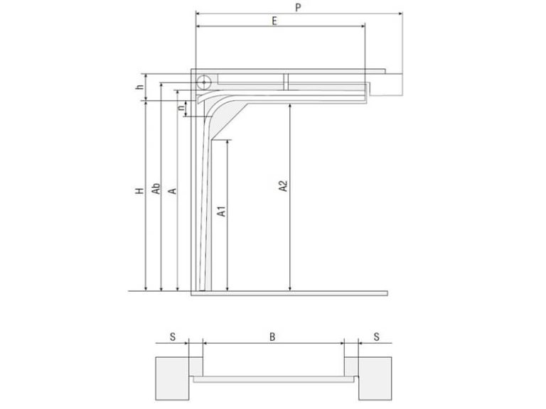
标准转弯提升需要的空间

转化次数 名称、参数名称 | 计算公式 |
H, 毫米 开口高度 | H |
h, mm 净空高度 | ≥230; |
B, 毫米 开口宽度 | 乙 |
A、mm 角柱高度 | H+110 |
Ab, mm 轴和滚筒高度 | ≥A+59 |
A1,mm 垂直导轨高度 | A-543 |
A2,mm 水平导轨高度 | A-106 |
E, mm 水平导轨长度 | 高+340 |
Db、mm 扭转机构工作面积 | 取决于开口的大小和防护罩的重量 |
S, mm 最小侧面空间 | 120(150 带“加热电路”选项) |
n, mm 覆盖打开位置的开口 | 190(不含驱动器); |
垂直转弯提升需要的空间

转化次数 名称、参数名称 | 计算公式 |
H, 毫米 开口高度 | H |
h, mm 净空高度 | ≥H+500 |
B, 毫米 开口宽度 | 乙 |
A、mm 角柱高度 | 2小时+120 |
Ab, mm 轴和滚筒高度 | A+166 |
S, mm 最小侧面空间 | 120(150 带“加热电路”选项) |
Q, mm 轴驱动位置面积 | 300 |
|
|
滑轮 | 镀锌轨道 |
|
|
三元乙丙密封条 | 铝合金塔伦 |
|
|
扭簧系统 | 钢丝绳防断装置 |
|
|
底部安全气囊 | 驱动电机 |

我们的保温提升门采用了最可靠的技术和高品质的材料,旨在为您提供最佳的保温性能和舒适度。让我们一起来看看这款门的特点和优势。
保温性能好:我们的保温提升门设计独特,采用高效的保温材料,能够有效地隔离室内外温差,提供出色的保温效果。无论是寒冷的冬天还是炎热的夏季,我们的门都能保持室内温度稳定,为您创造一个温暖舒适的环境。
密封好:为了提供最佳的密封效果,我们的保温提升门配备了高质量的密封条和密封系统。这些密封条能够有效地阻止冷空气、热空气和灰尘进入室内,确保室内空气质量和温度的稳定。密封好的设计还能有效降低噪音和震动,为您创造一个宁静的生活环境。
双面彩钢板:双面彩钢板是我们保温提升门重要的构成部分之一。我们采用了高密度、低导热系数的双面彩钢板,有效地减少了门框和门扇之间的热传导,避免了冷热桥效应。这不仅提高了保温性能,还能节能减排,为环境保护做出贡献。
高品质和耐用性:我们注重产品的质量和耐用性。保温提升门采用优质的材料和精湛的工艺制造而成,具有良好的耐用性和稳定性。它们经过严格的测试和质量控制,确保可以经受住长期使用和各种气候条件的考验。
多样化选择:我们提供多种不同风格、颜色和尺寸的保温提升门,以满足不同客户的需求和个性化的装饰要求。
联系我们:联系我们_西朗门业(苏州)有限公司
苏公网安备32050602011993